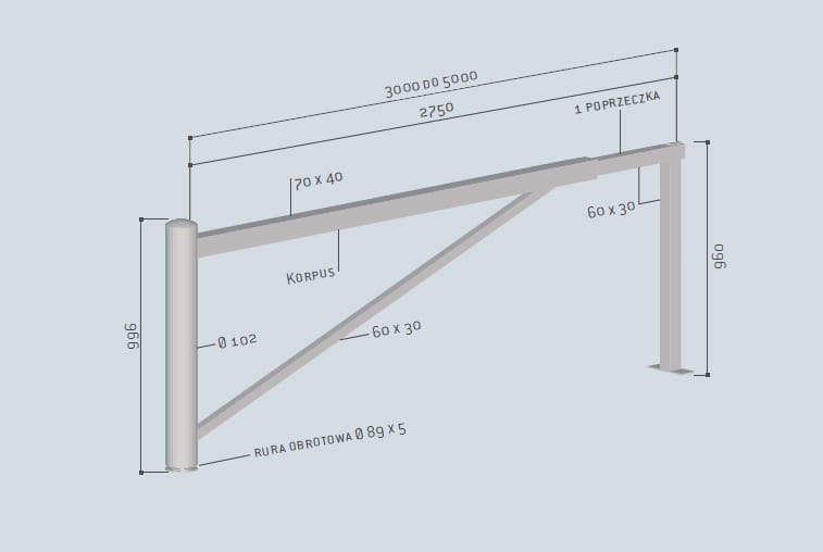
Szlaban obrotowy uniwersalny – od 3000 do 4750 mm
Nie każdy wjazd wymaga osobnego modelu szlabanu dla każdej szerokości drogi. Szlaban obrotowy uniwersalny z regulacją długości pozwala dopasować jedną konstrukcję do przejazdów od 3,0 do 4,75 m, co ułatwia dobór rozwiązania do drogi wewnętrznej, dojazdu technicznego albo strefy ograniczonego ruchu.
Szlaban teleskopowy sprawdza się wszędzie tam, gdzie szerokość przejazdu nie jest stała albo inwestor chce mieć jeden model do kilku typów wjazdów.
- drogi wewnętrzne i osiedlowe,
- wjazdy na teren firm, magazynów i zaplecza technicznego,
- miejsca z okresową lub stałą kontrolą przejazdu,
- obiekty, w których ważna jest możliwość dopasowania długości zapory do istniejącego układu drogi.
- szlaban obrotowy uniwersalny,
- kłódka dostarczona w zestawie,
- specjalne kotwy do mocowania,
- słupek ograniczający szlaban w pozycji otwartej.
- regulowana długość do dróg o szerokości od 3,0 do 4,75 m,
- opcjonalny drugi słupek podpierający szlaban w położeniu górnym,
- opcjonalny klucz trójkątny,
- uniwersalna konstrukcja do różnych szerokości przejazdu.
- Zakres długości: od 3000 do 4750 mm
- Przeznaczenie: drogi o szerokości od 3 do 4,75 m
- Zamknięcie: na kłódkę dostarczoną w zestawie
- Wykończenie: lakierowane w kolorze białym na warstwie cynku
- Oznakowanie: czerwone paski odblaskowe
- Montaż: na płytkach mocujących za pomocą specjalnych kotew w zestawie
- Pakowanie do transportu: jeden pakunek o długości 3 m
Szlaban działa ręcznie i pozwala zamknąć lub otworzyć przejazd bez stosowania automatyki. Teleskopowa konstrukcja umożliwia dostosowanie długości zapory do konkretnej szerokości drogi, dzięki czemu jeden model można wykorzystać w różnych lokalizacjach.
- na drogach osiedlowych i wewnętrznych,
- przy wjazdach do zakładów i magazynów,
- na terenach technicznych i gospodarczych,
- wszędzie tam, gdzie potrzebna jest mechaniczna kontrola dostępu bez rozbudowanego systemu bramowego.
- jeden model do kilku szerokości dróg,
- prosty montaż i obsługa ręczna,
- czytelne oznakowanie odblaskowe,
- kompaktowe pakowanie do transportu,
- możliwość rozbudowy o dodatkowe elementy podparcia i zamykania.
Sposób montażu przewidziano na płytach z użyciem dostarczonych kotew mocujących. W zestawie znajduje się także słupek ograniczający szlaban w pozycji otwartej, co ułatwia stabilne użytkowanie w codziennej pracy.
Szlaban porządkuje zasady przejazdu i ogranicza ryzyko nieuprawnionego wjazdu pojazdów. Odblaskowe oznaczenie poprawia widoczność zapory po zmroku, co zwiększa czytelność wjazdu i ogranicza ryzyko spóźnionej reakcji kierowcy.
Tak. Szlaban teleskopowy można dopasować do przejazdów o szerokości od 3,0 do 4,75 m.
Tak, produkt jest zamykany na kłódkę dostarczoną w komplecie.
Tak, dostępna jest opcja drugiego słupka podpierającego szlaban w położeniu górnym.
Szlaban dostarczany jest w jednym pakunku o długości 3 m, co ułatwia logistykę i magazynowanie.
